Architecture
STEE
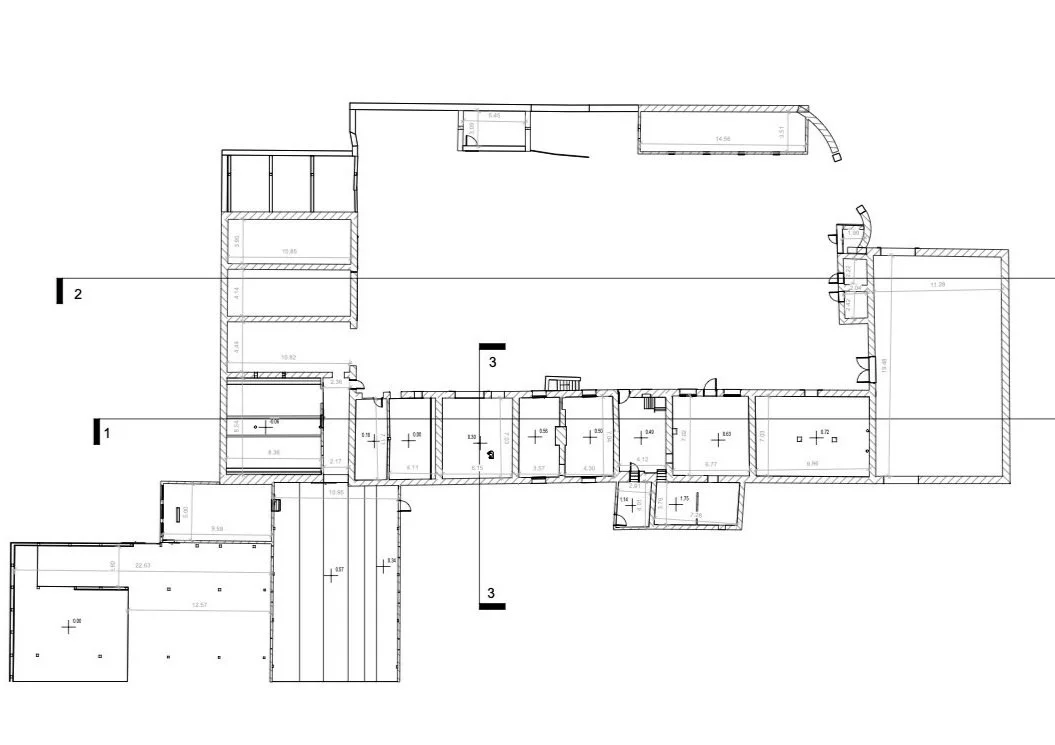
En vue d’une rénovation totale de la ferme, GoVR a procédé au relevé et à la modélisation complète du bâtiment.
En vue d’une rénovation totale de la ferme, GoVR a procédé au relevé et à la modélisation complète du bâtiment.